NLCA STUDIO - Via Papa Giovanni XXIII 19 - 82037 - Telese Terme (BN) +39 3394808924 - info@nlca.it
Albino (BG) 2009

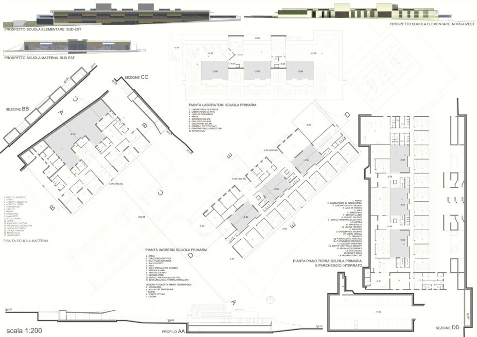
Il tema del Concorso, ha riguardato la realizzazione di un Polo scolastico improntato sui temi della sostenibilità ambientale e dell'efficienza energetica. Le nuove costruzioni, inoltre, avrebbero dovuto costituire, esse stesse, uno laboratorio di apprendimento didattico per gli alunni. La prima condizione data al progetto, suggerita dal buon orientamento del sito, è stata quella di impostare i corpi di fabbrica secondo un impianto regolare. Questo, ha permesso di disporre le parti del complesso in maniera da beneficiare di un orientamento equisolare e conservare, al tempo stesso, un criterio di ordine e di integrazione con la morfologia del terreno. La conformazione dei volumi è stata dettata dall’intenzione di dare un immediata comprensione delle funzioni e trasmettere una condizione percettiva di sicurezza nella fruizione e nell’appropriazione degli spazi.


L’ordine formale dei segni, tuttavia, non inficia il senso della scoperta e dell’esplorazione, così come le rientranze ed il ritmo delle facciate, contribuiscono insieme alle sequenze dei piani e degli spazi a evitare opprimenti monotonie prospettiche. Per contenere la dimensione volumetrica della Scuola Primaria rispetto al contorno ed evitare un'estensione eccessiva delle superfici in ombra sul viale centrale, è stata adattata la quota di posa del fabbricato al naturale declivio dell’area, in modo da avere un solo piano fuori terra. Tale scelta, tra l’altro, ha permesso di ottenere un eccellente livello di funzionalità nella sequenza tra i diversi piani (viale centrale, ingressi, livello inferiore, parcheggio interrato, strada comunale). Per garantire a tutti gli ambienti un’adeguata illuminazione ed un buon comfort termico, sono state concepite tre grandi corti interne che consentono di captare la luce nelle diverse ore del giorno. Per rendere più gradevole la vista esterna e contribuire al raffrescamento nei mesi più caldi, sono state previste alberature e specchi d’acqua in ogni corte.

Questi sono dotati di un adeguato sistema di “troppo pieno” per lo smaltimento dell’acqua meteorica e di una pompa per il movimento dell’acqua. Le aule, sono state disposte sul fronte sud-est per assicurare a tutte le medesime condizioni di esposizione. Per risolvere il problema della diffusione e del controllo della luce naturale e avere nelle aule un ambiente interno confortevole nel corso delle stagioni, è stato previsto in facciata, un sistema di tende avvolgibili microforate che permette di controllare costantemente l'apporto luminoso, adattandolo alle esigenze.
