NLCA STUDIO - Via Papa Giovanni XXIII 19 - 82037 - Telese Terme (BN) +39 3394808924 - info@nlca.it
Aversa (CE) 1998

Il Polo Scolastico nasce a servizio degli insediamenti realizzati nel periodo di massima espansione della città di Aversa. L’intervento, concepito in A.T.P. con altri professionisti, ha rappresentato, per tipologia e dimensione, un importante intervento di qualificazione delle aree a contorno delle lottizzazioni esistenti.


Scuola Secondaria di I° grado. Il lucernaio che consente il passaggio della luce naturale nell'atrio
Vista dell'atrio principale della Scuola Secondaria di I° grado.


Scuola Secondaria di I° grado. Vista di uno degli spazi di distribuizione delle aule.
Scuola Secondaria di I° grado. Particolare delle facciate vetrate con i frangisole orientabili.

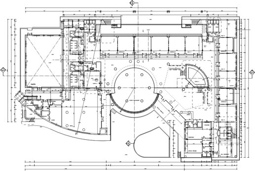
Del progetto iniziale, che prevedeva tre plessi, uno per ogni grado d'insegnamento, sono state realizzate la Scuola Secondaria di I° e la Scuola Materna, la Scuola Primaria è descritta in queste immagini. La struttura, con una superficie coperta di 3620 mq, è stata concepita per accogliere venti classi. L’ingresso, gli uffici e gli spazi collettivi sono stati posizionati sul lato nord in prossimità della strada d’accesso, mentre le aule sui lati sud e ovest. Per soddisfare possibili differenti esigenze di configurazione spaziale, sono state previste ogni due classi, aule aggiuntive per attività interciclo, dotate di pareti mobili e pareti attrezzate. Tali spazi costituiscono un compendio essenziale delle aule, in quanto luogo per ospitare le attività di gruppo tra due classi o attività di lavoro specializzato come quelle che comprendono il movimento, la manipolazione e la pittura.

Particolare attenzione è stata data agli spazi di relazione e di servizio quali l’aula polivalente, la biblioteca, la mensa e la palestra. L’aula polivalente e l’annessa biblioteca al secondo livello, sono state concepite come nucleo centrale dell’intera scuola, intorno al quale ruotano le aule per le attività normali e di interciclo. Questa intenzione è accentuata dalla figura geometrica troncoconica a base circolare dalla quale si sviluppano le direzioni principali. Un sistema di affaccio continuo, tra gli spazi del piano terra e del primo piano, crea una continuità fisica tra l’atrio e il disimpegno superiore. Le stesse scale che si snodano a braccio verso l’ingresso, sono state considerate non solo come collegamento tra i due livelli ma come veri e propri elementi di mediazione visiva e spaziale.
Progetto in A.T.P. : arch. tti S. Falzarano, V. Izzo, M. Esposito, R. Stallone, N. Cinque, Ing. S. Perone


Pianta del piano terra della Scuola Primaria
Particolare dell’attacco della vetrata conica in copertura.