NLCA STUDIO - Via Papa Giovanni XXIII 19 - 82037 - Telese Terme (BN) +39 3394808924 - info@nlca.it
Vercelli 2005

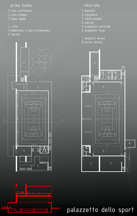
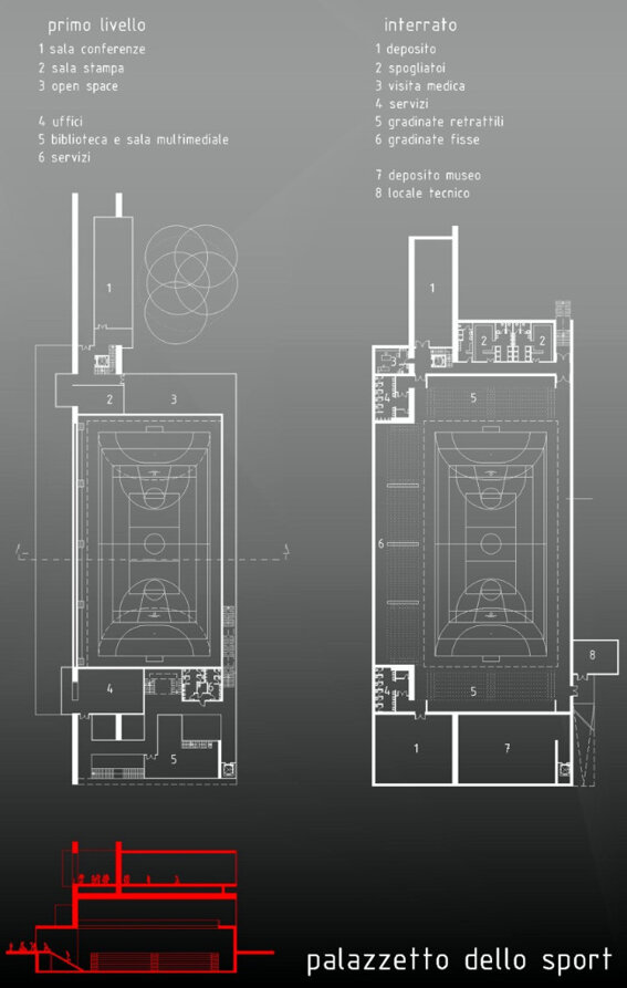
Il Concorso nazionale ha riguardato la progettazione di un nuovo Complesso Sportivo con Spazi Museali dedicati alla storia e alla cultura della disciplina schermistica. L’area individuata dall’Ente è situata al limite della struttura dello Stadio Comunale e del Parco urbano. La conformazione del lotto, ha suggerito una soluzione caratterizzata da una lettura visiva spiccatamente tangenziale. Gli elementi costitutivi, sono stati immaginati come blocchi incastonati in due pannelli portanti. Soluzione, questa, che ha consentito di slittare liberamente i blocchi contenenti le diverse parti funzionali del complesso, senza rinunciare ad un criterio esterno di ordine formale.


Le vetrate, attraverso la quale è possibile vedere la conformazione e lo sviluppo degli spazi interni, definiscono associazioni contrastanti che accentuano la tensione tra i diversi materiali, tra pieni e vuoti, tra corpi aggettanti trasparenti, quasi sospesi e la pienezza delle strutture, tra l’apparente semplicità di facciata e la complessità spaziale interna. Il tema adottato per la quinta prospettica, prosegue nel disegno delle coperture. Le bucature e le discontinuità, verticali ed orizzontali, si sommano tra loro, generando continui giochi di luci e di ombre. Un interruzione della cortina lungo il percorso stradale di via Derna, apre un nuovo varco verso gli spazi pubblici del Parco e dello Stadio, favorendo la fruizione e l’accessibilità per chi proviene da questo lato. Il fronte sud dell’edificio è caratterizzato da una grande vetrata, attraverso la quale è possibile vedere la conformazione e lo sviluppo degli spazi museali, dall’atrio fino al roof garden dove è stato previsto un caffè-ristorante con tavoli all’aperto e spazi per l’allestimento di eventi temporanei.


Viste prospettiche del complesso. La copertura riprende il tema compositivo della facciata. Le bucature corrispondono a pozzi di luce per i piani inferiori e spazi attrezzatidel roof garden



Progetto in I.C.S. + Architetti Associati