NLCA STUDIO - Via Papa Giovanni XXIII 19 - 82037 - Telese Terme (BN) +39 3394808924 - info@nlca.it
Quartiere Chiaiano - Napoli 2001

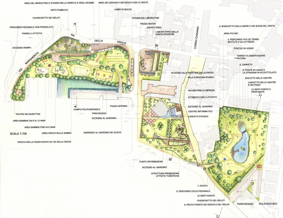
Nel 2001, lo Studio ICS+ si aggiudica la seconda edizione del Concorso Nazionale di Progettazione Partecipata e Comunicativa con un progetto sul Quartiere Chiaiano a Napoli. L’esperienza è di grande interesse per l’impostazione concorsuale e per la presenza di Enti promotori di particolare prestigio, quali l’I.N.U., il WWF, l’ANCI, il Ministero delle Infrastrutture e Trasporti. Le indicazioni di concorso non sono ‘calate dall’alto’, né sono frutto dell’estro dei progettisti, ma provengono da dati e suggerimenti forniti dagli abitanti, nel corso di incontri e laboratori sperimentali precedentemente svolti. La stessa individuazione del progetto vincitore scaturisce delle valutazioni di una Giuria locale composta da diverse categorie di portatori d’interesse e di una Giuria tecnica nazionale. L’esito progettuale è stato, pertanto, il risultato di istanze reali e di una attenta comprensione del luogo.
A Chiaiano il genius loci si presenta con i caratteri di un paesaggio sospeso tra edificato e natura, privo di luoghi d’incontro privilegiati, di una strada o una piazza principale. È metropoli e periferia, è casale e campagna; in pochi metri, modifica radicalmente, paesaggio, colori, materiali, sensazioni. È un luogo che accoglie il visitatore ma, al tempo stesso, rivela un forte senso del privato, segnato dai recinti e dai muri che delimitano gli orti e disegnano le strade. Le risposte progettuali hanno cercato di accogliere la complessità di questi aspetti legati all’identità del quartiere, suggerendo una nuova interpretazione delle relazioni e delle dinamiche che hanno luogo con la città e il territorio circostante.Le linee guida del progetto sono orientate a dare identità agli spazi, organizzandoli in un sistema di ambiti dove il preesistente è inteso come materia prima da reinventare e da arricchire di relazioni e di riconoscibilità. Il muro che preclude la vista, si apre per trasformarsi in quinta accessibile, mentre lo spazio non costruito si trasforma in giardino tematico. Gli elementi del luogo assumono, in questa ottica, un diverso carattere, relazionandosi in modi nuovi, ma sempre appropriati alla loro natura. Il tematismo di ognuno di essi non è progettato, al contrario sono i luoghi stessi a suggerire per forma, collocazione, storia e stato di utilizzo, la loro naturale vocazione. In questa logica è stato ripensato tutto il sistema della mobilità con il completamento di un circuito esterno, in grado di decongestionare il traffico passante per il centro e consentire la realizzazione di percorsi sicuri ciclo-pedonali tra le aree del quartiere, le scuole e le altre aree di progetto. L'intero progetto assume i bambini come parametro del cambiamento, anche nel linguaggio grafico degli elaborati, dove le diverse parti definiscono un sistema di luoghi indirizzati al loro sviluppo, con spazi dedicati alla cultura, al gioco, all'arte.


Rispetto al bando di Concorso, il Comune di Napoli ha dato seguito a due soli lotti d'intervento. Uno di questi ha riguardato gli spazi della Scuola Giovanni XXIII ed il tratto ad essa antistante sul Corso Chiaiano. Il tema portante è stata la re-identificazione dei luoghi e la loro apertura alla vita del quartiere. In sostituzione della recinzione esistente sono state disposte tre quinte murarie in successione che collegano Corso Chiaiano alla Scuola, generando una nuova successione di spazi e prospettive. Questa soluzione, oltre a delineare in maniera chiara il sistema degli accessi, ha permesso la realizzazione di nuovi ambiti funzionali sia verso la strada che verso la nuova piazza ricavata nello spazio antistante l’edificio scolastico. In questo modo vengono create nuove relazioni tra i percorsi, non solo in termini funzionali, ma anche in quanto luoghi della vita sociale. Il marciapiede, qualificato dal disegno della pavimentazione, si dilata diventando luogo per la sosta. La piazza, definita tra il muro e la scuola, assume il carattere di luogo protetto rispetto alla strada e spazio di mediazione rispetto all'area giochi posta al lato dell'edificio
Il marciapiedi e lo spazio antistante la Scuola, acquistano la praticabilità e la sicurezza che non avevano precedentemente con la presenza della recinzione.
La soluzione adottata migliora le condizioni d’accessibilità all’area scolastica, che viene, così, naturalmente integrata al Corso e al vissuto quotidiano del quartiere.





Il tema del pergolato è stato riproposto all’interno del giardino scolastico, dove è stato realizzato un grande spazio pavimentato con doghe in legno, per manifestazioni e attività di gioco.
Progetto in A.T.P. ( arch. tti V. Izzo, G. Ciotta, R. Stallone, A. Rispoli - consulente dott.ssa P. Fantasia)


